Ručný lanový navijak BRANO LN 0,5t a 1,0t, bez lana
Lanové navijaky Brano ponúkame v 2 variantoch nosnosti 0,5t a 1t.
Použitie:
Na ručné zdvíhanie a ťahanie bremien:
- ako obslužné zdvíhadlo pre montážne a údržbárske práce v technologických zariadeniach každého druhu,
- pre nakladanie osobných automobilov alebo lodí na prívesy,
- pre manipulačné činnosti na malých lodiach (napínanie plachiet a pod.),
- možnosť používania vo výbušnom prostredí - platí len pre varianty s označením NEXP - označenie "výbušnosti" výrobku - I M2; II 2G T5 (skupina zariadení I, kategórie M2; skupina zariadení II, kategória 2G, teplotná trieda T5).
Vlastnosti:
- jednoduchá ľahká konštrukcia,
- jednoduchá obsluha,
- antikorózna povrchová úprava galvanickým pozinkovaním - pre štandardné prostredie,
- antikorózna povrchnová úprava galvanickým pokovaním "ZinekNikl" - pre korózne náročnejšie prostredie,
- lano s hákom pre štandardné prostredie je galvanicky zinkované,
- lano s hákom pre korózne náročnejšie prostredie môžeme ponúknuť v celonerezovom prevedení,
- použitie navijaku v neštandardnom alebo extrémnom prostredí konzultujte s výrobcom
pripravené pre montáž na konštrukcii,
- minimálne nároky na údržbu.
Dodávame v dvoch verziách: s lanom alebo bez lana.

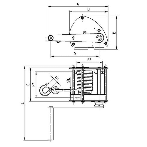
| Typ | Nosnosť | A | B | C | D | E | F* | G* | G1 | L | R | Lano Ø | Zdvih | Prevodový pomer | Ovládacia sila na kľučke max. | Hmotnosť navijaka s lanom |
| --- | t | mm | mm | mm | mm | mm | mm | mm | mm | mm | mm | mm | m | --- | N | kg |
| LN | 0,5 | 264 | 167 | 344 | 193 | 186 | 144 | 115 | 19 | 5 | 200 | 5 | 10 | 1:08 | 250 | 9,5 |
| LN | 1,0 | 373 | 207 | 460 | 240 | 209 | 160 | 160 | 19 | 8 | 300 | 8 | 10 | 1:06 | 320 | 15,2 |
* rozstupy otvorov pre ukotvenie lanového navijaka
Ø kotevných otvorov – LN/0,5t – 9mm, LN/1t – 11mm

