Ručný kladkostroj KITO typ CB015A nosnosť 1500kg
Ručné reťazové kladkostroje série CB japonského výrobcu KITO sú mimoriadne odolné kladkostroje určené aj pre najťažšie pracovné podmienky. Vďaka prémiovým komponentom ponúka tento kladkostroj vysokú účinnosť a dlhú životnosť.
V súlade so smernicou 2006/42/ES a technickými normami DIN EN 13157 a EN ISO 12100. Certifikát DGUV-GS. Poniklovaná reťaz zdvihu s pevnosťou 1000N/mm² podľa EN 818-7.
Zdvih ovládaný retiazkou.
Nosnosť 0,5t - 50t.
Hmotnosť netto 10kg - 640kg (so štandardnou dĺžkou reťaze)
Základné informácie:
- v rade CB - 14 modelov, nosnosť 500kg - 50 000kg
- vhodné aj do najťažších pracovných podmienok
- vysoká odolnosť a spoľahlivosť
- dokonalá ochrana proti vonkajšiemu poškodeniu - skriňa prevodovky odolná voči nárazom, presný odliatok z vysokopevnostnej ocele a zosilnený kryt kladky ovládacej reťaze spoľahlivo chráni obe strany kladkostroja pred mechanickým poškodením, prerazením atď.,
- dvojitý kryt brzdového systému - spoľahlivo chráni pred prienikom cudzích telies, prachu, dažďovej vody atď. do brzdového mechanizmu kladkostroja,
- brzdový systém so zdvojenými pružinami - spoľahlivý, bezazbestový, suchý brzdový systém s garanciou správnej činnosti aj v prípade poškodenia jednej z pružín západky,
- háky kladkostroja - oba háky kladkostroja z legovanej, tepelne zušľachtenej ocele s dostatočnými rozmermi a bezpečnostnou poistkou. Spojenie strmeňa spodného háku s reťazou chránené proti mechanickému poškodeniu
- guličkové ložiská - vysoko kvalitné ložiská pre minimalizáciu mechanických strát, hladký a plynulý chod oboch reťazí,
- kladka reťaze zdvihu s vodiacimi kladkami - zaisťuje hladký a ľahký chod reťaze zdvihu,
- mechanická prevodovka s presným, optimalizovaným prevodovým súkolesím - kompaktná prevodovka s dlhou životnosťou a minimalizovanými mechanickými stratami, navrhnutá na základe dlhodobých skúseností.
- vysoko výkonná presná prevodovka TA zaisťuje, že sila, ktorá musí byť použitá na zdvíhanie bremena s ručnou reťazou, je udržiavaná čo najnižšia.
- nastaviteľná zarážka - zasunutie čapu zarážky do vybraného článku reťaze zdvihu spoľahlivo zabraňuje zbehnutiu spodného háku reťaze zdvihu pod zvolenú úroveň, ev. vyšmyknutie reťaze zdvihu, z mechanizmu kladkostroja
- k dispozícii je tiež obmedzovač preťaženia, ktorý zvyšuje stupeň bezpečnosti používateľa pomocou integrovaného mechanizmu spojky. Pokiaľ je kladkostroj nadmerne preťažený, spojka prešmykuje. Bremeno zostáva nepohyblivé a nemôže byť zdvíhané bez ohľadu na akúkoľvek ďalšiu aplikovanú ručnú silu
- ďalšie voliteľné príslušenstvo:
- oceľové alebo textilné reťazové kontajnery, obmedzovač preťaženia, predĺženie hriadeľa kladky, ovládacie reťaze, pojazdy TSP, TS
- nerezová reťaz na prianie.
- z radu CB štandardne ponúkame veľkosti: CB005 500kg, CB010 1000kg a CB015 1500kg. Ďalšie veľkosti na objednávku.
| Model | Nosnosť | Dĺžka zdvihu |
Dĺžka ovládacieho |
Ovládacia sila pri max. Nosnosti | Posun ovl. Reťaze na 1 m zdvihu | Reťaz zdvihu priemer × dĺžka článku |
Počet slučiek |
Testovacie záťaž |
Hmotnosť netto |
Hmotnosť brutto |
Pridaná hmotnosť na 1 m zdvihu |
| --- | kg | m | m | N | m | mm | --- | T | kg | kg | kg |
| CB005 | 500 | 3,0 | 3,0 | 235 | 25 | 5,0 × 15,1 | 1 | 0,75 | 11,0 | 11,5 | 1,5 |
| CB010 | 1000 | 3,0 | 3,0 | 284 | 43 | 6,3 × 19,1 | 1 | 1,50 | 12,5 | 13,0 | 1,8 |
| CB015 | 1500 | 3,0 | 3,0 | 343 | 57 | 7,1 × 21,2 | 1 | 2,40 | 15,5 | 16,0 | 2,1 |
| CB020 | 2000 | 3,0 | 3,0 | 353 | 70 | 8,0 × 24,2 | 1 | 3,00 | 20,0 | 21,0 | 2,3 |
| CB025 | 2500 | 3,0 | 3,0 | 323 | 99 | 9,0 × 27,2 | 1 | 3,80 | 27,0 | 28,0 | 2,7 |
| CB030 | 3000 | 3,0 | 3,0 | 353 | 114 | 7,1 × 21,2 | 2 | 4,80 | 24,0 | 26,0 | 3,2 |
| CB050 | 5000 | 3,0 | 3,5 | 333 | 198 | 9,0 × 27,2 | 2 | 7,50 | 41,0 | 43,0 | 4,4 |
| CB075 | 7500 | 3,5 | 4,0 | 343 | 297 | 9,0 × 27,2 | 3 | 9,50 | 63,0 | 66,0 | 6,2 |
| CB100 | 10000 | 3,5 | 4,0 | 353 | 396 | 9,0 × 27,2 | 4 | 12,50 | 83,0 | 91,0 | 7,9 |
| CB150 | 15000 | 3,5 | 4,5 | 363 | 594 | 9,0 × 27,2 | 6 | 20,00 | 155,0 | 165,0 | 11,4 |
| CB200 | 20000 | 3,5 | 4,5 | 2 × 353 | 2 × 396 | 9,0 × 27,2 | 8 | 25,00 | 235,0 | 305,0 | 15,8 |
| CB300 | 30000 | 3,5 | 4,5 | 2 × 421 | 2 × 495 | 9,0 × 27,2 | 10 | 40,00 | 310,0 | 400,0 | 19,2 |
| CB400 | 40000 | 3,5 | 4,5 | 2 × 421 | 2 × 693 | 9,0 × 27,2 | 14 | 50,00 | 480,0 | 630,0 | 26,2 |
| CB500 | 50000 | 3,5 | 4,5 | 2 × 480 | 2 × 792 | 9,0 × 27,2 | 16 | 62,50 | 640,0 | 790,0 | 29,7 |
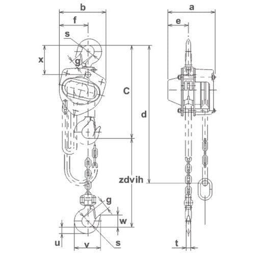
Rozmery v mm - výkres pre veľ. Do 2,5t:

| Model | C | a | b | d | e | f | g | s | t | u | v | w | x |
| --- | mm | mm | mm | mm | mm | mm | mm | mm | mm | mm | mm | mm | mm |
| CB005 | 285 | 158 | 161 | 2500 | 69 | 99 | 27,0 | 35,5 | 12,1 | 17,0 | 77,0 | 35,0 | 89 |
| CB010 | 295 | 162 | 161 | 2500 | 71 | 99 | 29,0 | 42,5 | 16,0 | 21,8 | 93,0 | 41,0 | 101 |
| CB015 | 350 | 171 | 182 | 2500 | 78 | 112 | 34,0 | 47,5 | 19,5 | 26,5 | 106,0 | 47,0 | 119 |
| CB020 | 375 | 182 | 202 | 3000 | 87 | 125 | 36,0 | 50,0 | 21,8 | 30,0 | 116,0 | 49,0 | 124 |
| CB025 | 420 | 192 | 233 | 3000 | 91 | 143 | 40,0 | 53,0 | 24,3 | 33,5 | 126,0 | 53,0 | 136 |
| CB030 | 510 | 171 | 235 | 3100 | 78 | 162 | 42,5 | 56,0 | 27,2 | 37,5 | 138,0 | 57,0 | 148 |
| CB050 | 600 | 192 | 282 | 3600 | 91 | 194 | 46,5 | 63,0 | 34,5 | 47,5 | 161,0 | 67,5 | 172 |
| CB075 | 770 | 192 | 373 | 4200 | 91 | 253 | 72,5 | 85,0 | 47,5 | 63,0 | 231,0 | 97,5 | 275 |
| CB100 | 760 | 192 | 438 | 4200 | 111 | 308 | 72,5 | 85,0 | 47,5 | 63,0 | 231,0 | 97,5 | 295 |
| CB150 | 1020 | 268 | 492 | 4700 | 119 | 337 | 80,0 | 100,0 | 60,0 | 80,0 | 275,0 | 110,0 | 320 |
| CB200 | 1180 | 374 | 746 | 4800 | 187 | 373 | 81,0 | 110,0 | 67,0 | 90,0 | 301,0 | 125,0 | 351 |
| CB300 | 1300 | 404 | 746 | 4800 | 202 | 373 | 103,0 | 125,0 | 85,0 | 112,0 | 367,0 | 143,0 | 400 |
| CB400 | 1480 | 502 | 760 | 4900 | 251 | 380 | 96,0 | 145,0 | 123,0 | 133,0 | 412,5 | 182,5 | 445 |
| CB500 | 1560 | 544 | 796 | 4900 | 272 | 398 | 100,0 | 165,0 | 135,0 | 155,0 | 447,5 | 202,5 | 467 |

